Sign In

Register

Forgotten your Password?

Enter your email address below and we'll send instructions and a link to reset your password

SOLD

2/5 Trafford Street, Beaconsfield.

3
2
2
Price undisclosed

Historic, stylish, tranquil.

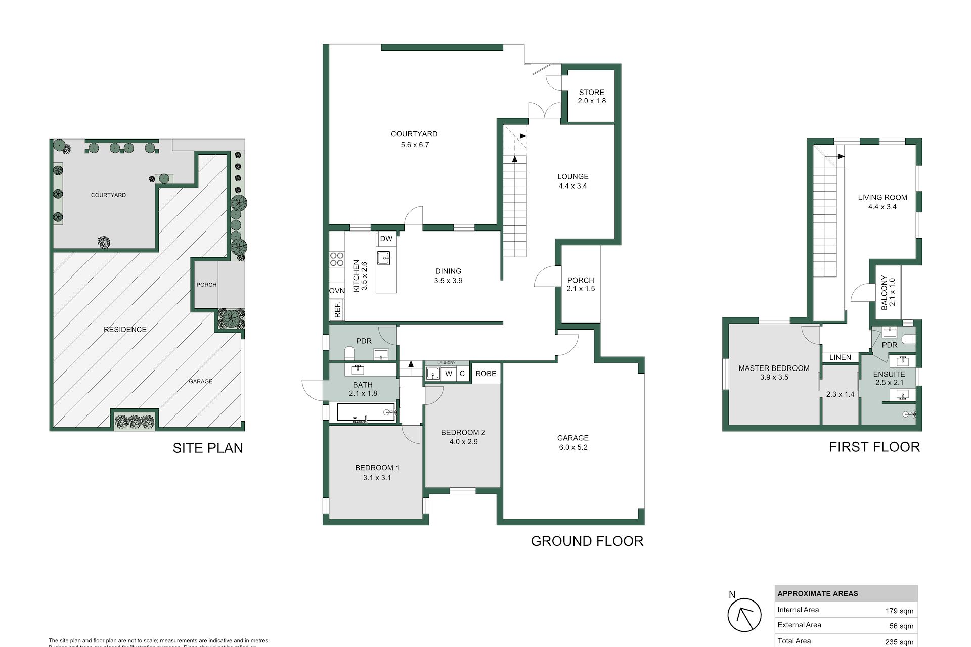
Thoughtfully designed townhouse in Beaconsfield, where historic charm seamlessly blends with contemporary luxury. Part of the exclusive 'The Stables' collection, this double-storey home sits on the site of Eli Solomon's former homestead. The original limestone walls, rich with over a hundred years of history, are cleverly integrated, both inside and out, creating a unique mix of old-world character and modern convenience. These historic walls form part of the surrounds that create a peaceful courtyard, offering the perfect retreat for relaxation or entertaining. Natural light flows effortlessly through the home, with thoughtfully placed windows that capture the best aspects throughout the day, enhancing the open-plan living spaces. The warm oak flooring and stunning stone features are highlighted by this abundance of light. The modern kitchen, with sleek white cabinetry, a spacious island, and quality finishes, is designed for both everyday ease and hosting. The seamless flow between indoor and outdoor spaces makes the courtyard ideal for alfresco dining and enjoying Fremantle's coastal breeze. Upstairs, a second living area provides a cozy space to relax, with some views of the ocean from both the sitting room and the master bedroom. Each bedroom is designed to be light-filled and comfortable, with the spacious master suite also offering a tranquil retreat with leafy views. The second bedroom, equally generous in size, includes ample wardrobe space, while the third bedroom offers flexibility as a home office, nursery, or guest room. Situated in the heart of Beaconsfield, this home seamlessly combines rich historical character with modern convenience. With heritage features that reflect a unique piece of local history, the townhouse offers both style and comfort. Located in one of Fremantle's most desirable areas, it provides easy access to South Fremantle, the Fremantle town centre, and White Gum Valley. Blending the charm of its heritage setting with contemporary design, this property presents a truly bespoke lifestyle opportunity in one of Beaconsfield's most sought-after addresses. Features • Ocean Views from upstairs. • Historic limestone walls with over 100 years of history, integrated inside and outside • Private courtyard framed by stone walls, perfect for relaxation and entertaining • Open-plan living spaces filled with natural light • Warm oak flooring throughout the main living areas • Inviting lounge room space enhanced by mantle gas fire place and efficient air conditioning for relaxed comfort • Modern kitchen with sleek white stone benchtops and cabinetry also featuring stunning tiled splash back • Seamless indoor-outdoor flow to the courtyard, ideal for alfresco dining • Second living area upstairs with views of the ocean from both the sitting room and master bedroom • Light-filled master suite with peaceful leafy views • Spacious second bedroom with ample wardrobe space • Versatile third bedroom that can serve as a home office, nursery, or guest room • Sought-after Beaconsfield location with rich historical character • Close proximity to Fremantle's amenities and coastal lifestyle • 2.7km South Beach • 1.4km Central Fremantle (cafes, bars and restaurants) • 1km Fremantle Primary School • 2.5km John Curtin College • 2.1km Notre Dame University Water Rates: $1,754.35 pa Council Rates: $2,845.43 pa Strata Fees: $946.95 pq DISCLAIMER: Whilst every care has been taken with the preparation of the particulars contained in the information supplied, believed to be correct, neither the Agent nor the client nor servants of both, guarantee their accuracy. Interested persons are advised to make their own enquiries and satisfy themselves in all respects. The particulars contained are not intended to form part of any contract.

Director | Residential
Resources
Property information
Property ID
L28882454
Property type
Townhouse
Land size
302.0 squareMeter
Home size
235.0 squareMeter
Calculate my travel time.
-
-
-
-

Your local office.

Request for Contract.

Thank you for your interest in 2/5 Trafford Street, Beaconsfield, WA 6162. To receive a copy of the contract via email, please fill in your details below.

 

Contact agent.

If you require more information please complete the following details

Request